服務熱線
18660192690
設計說明:
本案超市項目位于山東省鄆城縣,帝景灣小區,周邊小區居民較多且小區周圍有幾年夫妻便利店面積大小均未超過100平方米店且沒有精品超市,周邊商業環境較好。綜合考慮購物中心物業對本項目環境定位較高,周邊客源較多,故項目裝修設計定位為:精品超市。
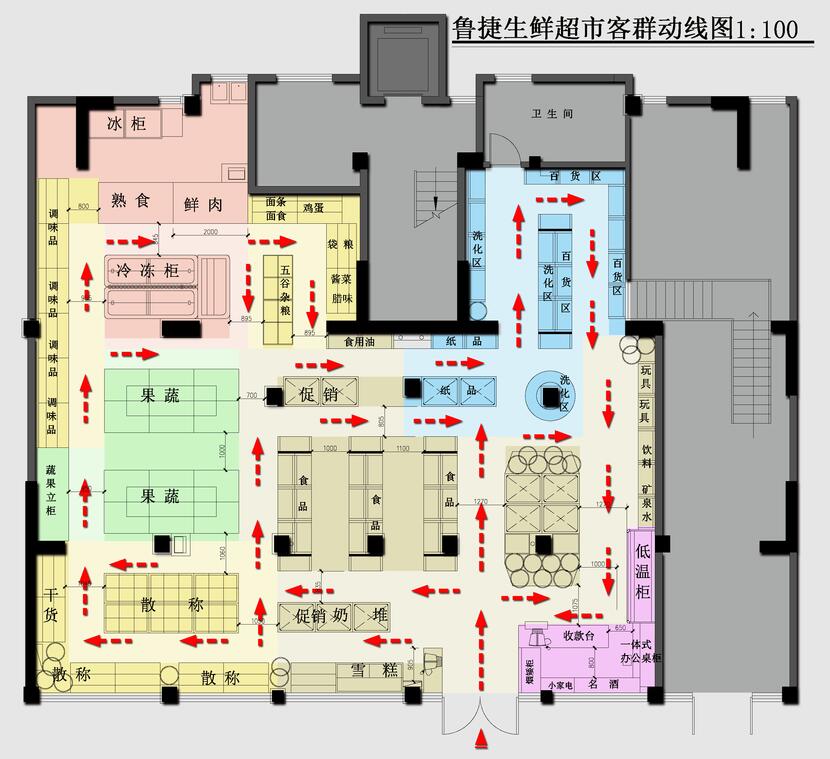
一、平面規劃:平面布局中重點考慮了本項目的建筑類型,物業形態以及項目所在的社區的客群,消費能力,結合超市固有的特點(如裝修風格定位、貨架的樣式、貨架規格,購物通道大小等的設置)并考慮超市客群動線的合理性和適當延長以及有意避免因建筑戶型限制而形成的購物死角,
二、裝修風格定位:經過充分與項目甲方溝通后,并綜合考慮裝修造價及裝修定位后,裝修風格定位為“工業風格”為基礎,輔以:簡約“風格元素為基調的裝飾效果。
三、裝修色彩定位:超市經營品類多以新鮮、營養、健康的食品為主,故裝修色彩定位為以綠色為主題色,以黃色為輔助色,黑白灰等無色系為基礎色調。形成穩重又不乏靈活的視覺感受;
四、裝飾材料:工業風格基礎元素的運用就是對裝修材料特性及質感的運用,通過深灰色與白色的色差對比形成視覺對比。通過燈光在通道照明用冷白色燈光和購物商品區的暖色燈光,進行冷暖燈光的對比等等...... 通過綜合運用各要素形成整體裝修環境的整體視覺感受,最終使人們感受到和諧溫馨又不失優雅大方的購物環境。







上一篇:超市設計--菏澤鄆城親百信超市